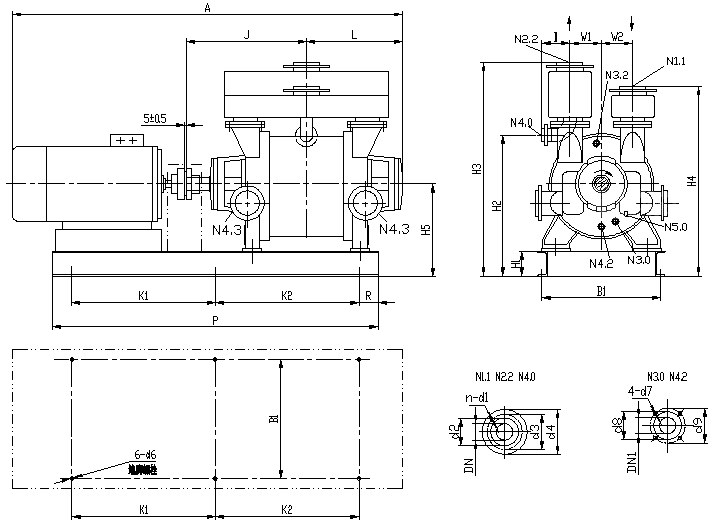
| 2BE1 303/305/306/353/355/356直联传动安装尺寸 | |
|
|
|
| N1.1连通管法兰 N2.2分离器法兰 N3.0工作液接口 N3.2填料函密封液接口 N4.0分离器排液口 N4.2冲洗、排液口 N4.3泄漏液排放口 N5.0自动溢流阀 |
|
| 代号 | A | B1 | DN1 | d6 | d7 | d8 | d9 | H2 | H3 | H4 | H5 | I | J | K1 | K2 | |
| 2BE1 303 | 2855 | 870 | 25 | 27 | M12 | 68 | 85 | 1025 | 1560 | 1385 | 675 | 205 | 875 | 1050 | 1050 | |
| 2BE1 305/306 | 3208 | 870 | 25 | 27 | M12 | 68 | 85 | 1025 | 1560 | 1385 | 675 | 205 | 930 | 1225 | 1225 | |
| 2BE1 353 | 3265 | 990 | 32 | 27 | M12 | 78 | 100 | 1240 | 1880 | 1680 | 870 | 245 | 955 | 1185 | 1185 | |
| 2BE1 355/356 | 3580 | 990 | 32 | 27 | M12 | 78 | 100 | 1240 | 1880 | 1680 | 870 | 245 | 1025 | 1270 | 1270 | |
| 代号 | L | P | R | W1 | W2 | N3.2 | N4.3 | |||||||||
| 2BE1 303 | 705 | 2380 | 140 | 230 | 230 | G1/2" | G1/2" | |||||||||
| 2BE1 305/306 | 760 | 2750 | 150 | 230 | 230 | G1/2" | G1/2" | |||||||||
| 2BE1 353 | 790 | 2670 | 150 | 285 | 285 | G1/2" | G1/2" | |||||||||
| 2BE1 355/356 | 860 | 2840 | 150 | 285 | 285 | G1/2" | G1/2" | |||||||||
| 代号 | DN | d1 | d2 | d3 | d4 | n | 代号 | DN | d1 | d2 | d3 | d4 | n | |||
| 2BE1 303 2BE1 305 2BE1 306 |
N1.1 N2.2 |
200 | 22 | 268 | 295 | 340 | 8 | 2BE1 353 2BE1 355 2BE1 356 |
N1.1 N2.2 |
250 | 22 | 320 | 350 | 395 | 12 | |
| N4.0 | 100 | 18 | 158 | 180 | 220 | 8 | N4.0 | 125 | 18 | 188 | 210 | 250 | 8 | |||